Celâleddin Çelik
TCDD için tasarlanan VIP yolcu vagonu, geçmişin ihtişamını ve bugünün çağdaş tasarım anlayışını bir araya getiren özel bir konsept çalışmadır. Esin kaynağı olan Orient Express’in efsaneleşmiş yolculuk hikâyeleri, bugünün tasarım diliyle buluşarak seçkin bir atmosfer oluşturur.
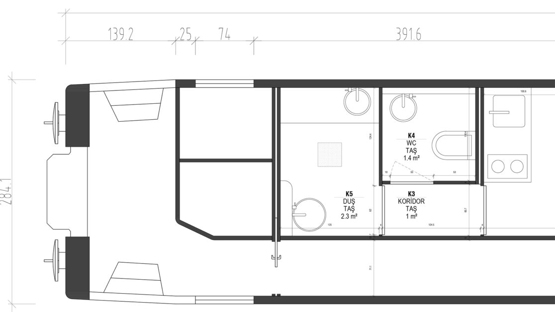
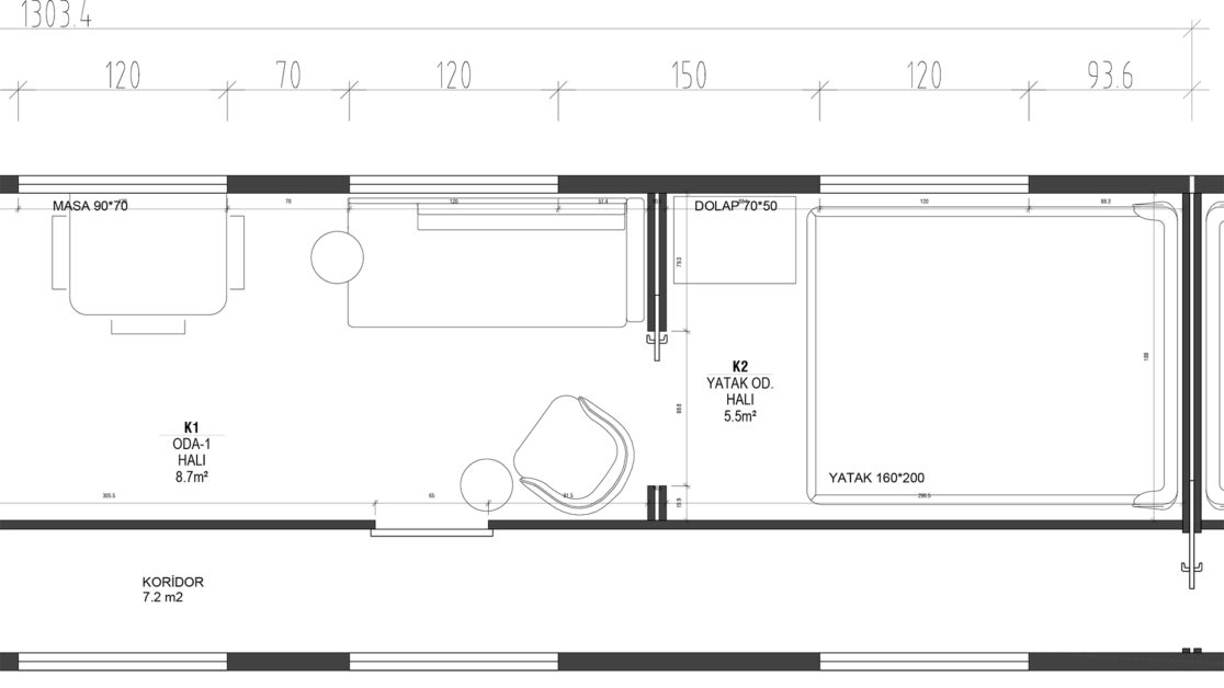
Sınırlı bir mekân olan vagon içinde, her santimetre dikkatle değerlendirilmiş; oturma alanı, yemek masası, yatak odası, banyo ve dolap içine gizlenmiş kitchenette fonksiyonel bir bütünlükle kurgulanmıştır. Üstten ışık alan skylight, yolculuk esnasında mekâna doğal aydınlık ve derinlik katarken, ferahlık hissini artırarak seyahatin zorluğunu hafifletmeyi amaçlar.
Kullanılan malzemeler ve detaylar, yerel unsurlardan esinlenerek günümüzün zarif çizgileriyle işlenmiştir. Ahşap yüzeyler, ince metal işçilikleri ve seçkin kumaşlar; seyahati yalnızca bir ulaşım biçimi olmaktan çıkarıp, üst düzey bir deneyim haline getirir.
Bu vagon, modern yolcunun beklentilerine cevap veren lüks bir “hareket eden suit” olarak kurgulandı; yolculuğu başlı başına bir deneyime dönüştüren bir mimari anlatımın ürünü oldu. Ancak proje, konsept tasarım aşamasında kalmış ve uygulanmamıştır.












