7 İklim 7 Bölge Ulusal Mimari Kentsel Tasarım Fikir Yarışması Mansiyon Ödülü
Tasarlanmış Olan ile Kendiliğinden Arasında
Zihinlerimiz için kavranması kolay, ortogonal bir yerleşim düzeni kurmak mimar açısından tutarlı ve rasyonel bir yol gibi görünür. Ancak bu katı düzen, çoğu zaman kullanıcıyı bastıran, ölçeğini küçülten, insanı dışarıda bırakan bir sertlik taşır.
Eskilerin cetvelle çizilmiş gibi dediği sokaklarda yürüyen insan, çoğu zaman bir sebepsizlik hisseder. Adım attıkça karşısına çıkan manzara değişmez, perspektif aynı kalır, hiçbir sürprizle karşılaşmaz. Bu monotonluk içinde insan, kendine ait bir mekân ölçeği bulmakta zorlanır.
Geleneksel mahalle dokusunda ise evler kendiliğinden, topografyanın yönlendirmesiyle, masada değil hayatın içinde şekillenir. Sokaklar eğridir, doğal akar, yürüyen insana yeni bir yön, yeni bir görüntü, yeni bir sebep sunar. Bu akışın içinde yürüyüş bir ritüele dönüşür, mesafe uzasa da yol kısa hissedilir.
Bu dokuda insan ölçeği belirleyicidir. Bir insanın bir nefeste sabırla yürüyebileceği mesafe bellidir. O mesafeler, ufak genişlemelerle birbirine bağlanır, böylece sokak nefes alır. Yaklaşık kırk hanenin bir araya geldiği bu komşuluk sınırı, hem sosyal hem de mekânsal ölçüde belirleyici bir birimdir.
Konum ve Doğa ile İlişki
Sıcak ve nemli bölgelerde yerleşimler rüzgârın serinletici etkisinden yararlanabilmek için çoğu zaman eğimin üst kotlarına yerleşir. Yapılar toprağa paralel konumlanarak hem doğaya daha az müdahale eder hem de inşaat maliyetini azaltır.
Rüzgâr yönü, yaşamın yönüdür. Bu nedenle binalar aynı aks üzerinde değil, birbirine göre şaşırtmalı biçimde yerleştirilir. Böylece her biri rüzgârdan eşit ölçüde faydalanır, iç mekânlarda doğal havalandırma sağlanır. Karşılıklı pencereler ve üst açıklıklar, enerji harcamadan soğutmayı mümkün kılar.
Gölge de rüzgâr kadar önemlidir. Saçaklar, çıkmalar, cumba ve eyvan gibi elemanlar hem yapıyı korur hem de gölgeli, yaşanabilir açık alanlar oluşturur. Güneş kırıcı yüzeyler, iç mekânların ısınmasını önlerken binanın kendi gölgesini de üretmesine yardımcı olur.
Görünürlük ve Mahremiyet
Şaşırtmalı yerleşim sadece rüzgârı değil, mahremiyeti de korur. Her konut kendi yönelimini bulur, manzara ile ilişki kurarken diğerine doğrudan açılmaz. Bu, gözle görünmeyen ama hissedilen bir sınırdır, huzuru korur.
Sokak perspektifinde tekdüzelik yerine çeşitlilik, mekan algısında zenginlik yaratır. Farklı akslarda yerleştirilen yapılar, birbirine bakan değil, birbirini tamamlayan bir sokak dizgesi oluşturur.
Bitkilendirme ve Gölge Ekonomisi
Yapı çevresindeki bitkilendirme yalnızca estetik değil, işlevsel bir karardır. Doğal gölge üretir, ısı adası etkisini azaltır, mahremiyeti güçlendirir. Her ağacın, her gölgenin bir yaşam kolaylığı vardır.
Mahalle Düşüncesi
Mahalle, sadece bir konut topluluğu değil, gündelik hayatın aktığı bir etkileşim alanıdır. Küçük ölçekli ticaret birimleri, mescit, park ve kahvehane gibi yapılar hayatın ritmini belirler. Mahallede odak yoktur, hayat bir merkezde toplanmaz, dağılır, sokağa karışır.
Bu dağınıklık düzensizlik değil, hayatın çeşitliliğidir. Fonksiyonların küçük ölçekli, çok sayıda ve homojen dağılmış olması, mahalleyi insan ölçeğinde tutar.
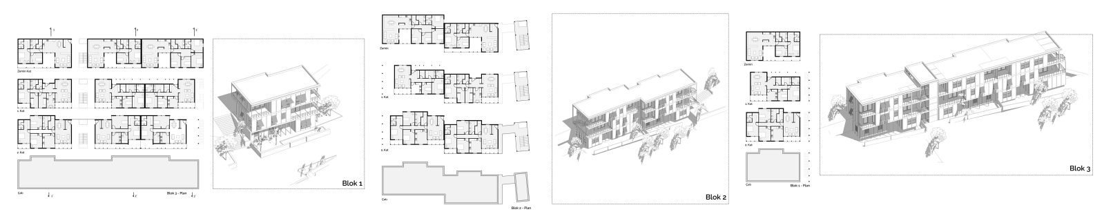
Modüler Sistem
Yerleşimde binalar 120×120 cm’lik bir modüler sisteme göre tasarlanmıştır. Bu sistem, düzen içinde çeşitlilik üretmeyi amaçlar. Modülerlik, bir teklik içinde çokluk yaratır. Ortağonal kurgunun sağladığı rasyonel iskelet, yapıların bir araya gelişinde daha esnek, daha doğal bir kompozisyona izin verir.









